Profil Technik Projekte Partner Kontakt   + + +  Biomethan - AG  + + +   A g r a r  -  G r o ß a n l a g e n b a u  + + +    Impressum
                 

Biogas

Biodiesel / Alkohol

Biomüllvergärung

Müllaufbereitung

Farmaufbau

Organische Schlämme

Energie aus Organik

 

 

 

BIOGAS

 

1.         Die Erzeugung von Biogas

 

Biogas n  biologische Kreislauf

 

1.1.     Biomasse

 

Von den jährlich nachwachsenden pflanzlichen Rohstoffen, Biomasse, dienen nur

  • etwa 2 % zur Produktion von Nahrungs- und Futtermitteln

  • etwa 1 % zur Erzeugung von Wärme durch Verbrennung

  • etwa 1 % zur Herstellung von Papier – und Faserstoffen.

Die verbleibenden 96 % nachwachsender Biomasse bleiben ungenutzt, obwohl der Energiegehalt der Masse etwa dem 8-fachen des jährlichen Weltenergiebedarfs entspricht.

 

1.2.     Biogas

 

Unter den Begriff Biomasse fallen wie oben beschrieben jegliche Art von pflanzlichen Stoffen (z.B. Rückstände aus Kartoffelverwertung, Zuckerrohr, Mais, u.v.a.), kann sich aber auch aus tierischen Bestandteilen zusammensetzen (z.B. Schlachtabfälle). Überall wo Biomasse durch Mikroorganismen (Bakterien) abgebaut wird, entstehen Gase.

Biogas, ein Gemisch von über 50 % Methangas und CO2 entsteht aber erst, wenn der organische Abbau von Biomasse anaerob (unter Sauerstoffausschluss) stattfindet.

Methangas  

60-80 %

Kohlendioxid

20-40 %

Wasserstoff

0-3 %

Wasserdampf

0-1 %

Sauerstoff

0-1 %

Schwefelwasserstoff

0-1 %

Ammoniak

0-1 %

 

 

 

 

 

 

 

 

 

Als hochwertiges Biogas bezeichnet man Gemische, deren Methan-Anteil ≥ 70 % ist. Der Heizwert eines Kubikmeters liegt bei 7.000 Wärmeeinheiten (WE), bezogen auf einen Methan-Gehalt von 65-75 %.Im Vergleich dazu erbringt ein Kubikmeter Erdgas mit höchstem Reinheitsgrad etwa 8.000 WE, ein Kilo Heizöl (etwas mehr als ein Liter) erbringt ca. 10.000 WE.

In der Natur entsteht Biogas im Magen von Wiederkäuern, aber auch in sauerstoffarmen, stehenden Tiefenschichten von Seen oder im Schlamm von Mooren und Sümpfen.

 

Verantwortlich für den Abbau von organischen Verbindungen (wie Kohlehydrate, Fette, Alkohole...) sind eine Vielzahl unterschiedlicher, symbiotisch arbeitender Mikroorganismen, die aus pflanzlichen wie auch tierischen Ausgangsstoffen sogenannte Stoffwechsel-Endprodukte – Biogas – produzieren. 

Die Reste dieser Mikroorganismen bilden zusammen mit den nicht abbaubaren Substanzen den Gärrückstand, der gegenüber dem Ausgangsmaterial Biomasse – außer einem äußerlich veränderten Erscheinungsbild – nur einen geringeren Kohlenstoffanteil aufweist. Da beim Abbauvorgang (anaerob) darüber hinaus nur geringe Stickstoffverluste (durch Umwandlung in Luftstickstoff) auftreten, besitzt der Gärrückstand einen besonders hohen Düngewert.

 

 

 1.3.     Biologischer Ablauf des Gärprozesses

 

Die Entstehung von Biogas aus Vergärung organischer Stoffe vollzieht sich hauptsächlich in vier Stufen, wobei jeder Stufe ganz bestimmte Gruppen von Mikroorganismen zugeordnet werden (insgesamt 55 verschiedene Bakterien-Stämme).

 

 chemische Aufschlüsselung - 4 Stufen

 

Stufe 1

fermentative Stufe - In dieser Phase werden die organischen Stoffe durch säurebildende Bakterien in ihre Bausteine Zucker, Fettsäure, Aminosäure und Glycerin gespalten. 

Stufe 2 

In dieser Stufe findet der Vergärungsprozess statt, der die aus Stufe eins aufgespalteten Bausteine in die o.a. Komponenten zerlegt. Letztere Bausteine sind bereits Aufbaustoffe für die vierte Stufe. 

Stufe 3 

Essigsäure bildende Stufe - Hierbei werden die zu diesem Zeitpunkt noch  langkettigen Fettsäuren durch spezifische azetogene Bakterien zu den Methanvorstufen Kohlendioxid, Wasserstoff und Azetat umgesetzt. 

Stufe 4 

Methan-Stufe - Im letzten Schritt erfolgt durch Methanbakterien die Umwandlung der vorher entstandenen Bausteine zu den Endprodukten Methan und Kohlendioxid.

 

 

2.      Aufbau der Anlage 

 

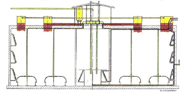
2.1.     Trennung der Gärphasen

 

Die verschiedenen Stufen bei Entstehung und Verwertung von Biogas stellen technisch unterschiedliche Anforderungen. Die technische Trennung der Gärbereiche ermöglicht es, gezielt die einzelnen Phasen zu steuern und die Problemstellungen herkömmlicher Anlagen (wie z.B. die schädliche Sauerstoffzufuhr im dritten Gärbereich) von Anfang an zu unterbinden. Nachfolgend das Prinzip der Zweistufen-Trennung.

 

Zweistufen-Fermenter, Vorderansicht

 

 

Zweistufen-Fermenter, Draufsicht

 

Das Substrat (die vorgewärmte Phase) wird in den äußeren Säurebereich I eingebracht, in dem die beiden ersten Gärphasen (die fermentative und essigsäurebildende Stufe) ablaufen. Der sich dort bildende Schwefel-Wasserstoff kann in diesem Bereich noch problemlos abgeleitet werden. Während das Substrat  - durch neue Zugabe – nach unten gedrückt wird, baut sich ein konstanter pH-Wert auf, der dem säureneutralen Wert im Methanbereich der Phase II entspricht.

Darüber hinaus ergibt sich die technische Möglichkeit, durch Zugabe bestimmter Stoffe direkt in den Methanbereich Phase II – Stoffe, die von den Methanbakterien sofort abgebaut werden können (z.B. Essigsäure) – den Stoffumsatz innerhalb bestimmter grenzen zu erhöhen und einen konstanten pH-Wert in der Phase II zu erzielen. Das vorgegärte Faulgut wird nun im Methanbereich weiter abgebaut und das sich bildende Gas aus dem oberen Teil des Reaktors – dem Gasdom – abgesaugt.

 

Vorteile des Prinzips  

  •    gleichmäßige Substratführung, regelbar

  •     keine Schwimmdeckenbildung

  •    Höhere Gasqualität und- Ausbeute durch Sauerstoff- u. CO2-Austrag aus der ersten Fermenterstufe

  •    geringere Baukosten, stabile Technik, einfache Bedingung

 

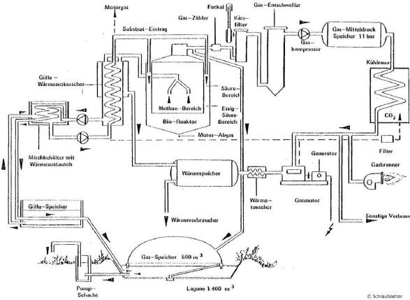
2.2.     Methoden der Wärmerückgewinnung und Wärme-Isolation

 

Die konstante Temperatur  im Faulraum ist Grundvoraussetzung für einen ungebrochenen Ablauf des Gärprozesses. Herkömmliche Biogasanlagen verbrauchen - unter europäischen Klimabedingungen – im Winter bis zu 50 % der von Ihnen selbst erzeugten Energie; in erster Linie zur Erwärmung der frischen Biomasse auf die jeweilige Faulraumtemperatur.

Darum wurde im Rahmen unserer Forschung auch ein System zur Wärmerückgewinnung entwickelt, dessen Kernstück ein speziell konstruierter Wärmetauscher darstellt. Das den Reaktor verlassende, ausgefaulte Substrat geht zuerst in eine Gegenstromanlage, dann in einen Mischbehälter und gibt dabei über Rohrschlangen seine Faultemperatur an das in Gegenrichtung durchfließende frische Faulgut ab.

Um zu erreichen, dass dieses erwärmt in den Reaktor gelangt, muss die noch fehlende Wärme durch eine nachgeschalteten Warmwasserheizung ausgeglichen werden. Um die notwendige konstante Temperatur im Faulraum zu erhalten und Wärmeverluste auszugleichen, wurde im Faulraumboden zusätzlich eine Rohrschlangen-Heizung installiert. Die Höhe der entstehenden Wärmeverluste ist im Anlagenkonzept berücksichtigt. Der Eigenenergiebedarf wird im Winter auf knapp 25 % gedrosselt und im Sommer sogar auf unter 10 % der Gasproduktion. Ein wichtiger Punkt für die Wirtschaftlichkeit. Eine zusätzliche Fußbodenerwärmung ist nicht nötig.  

 

 

2.3.     Speicherung der Nachgärung

 

Das in der Regel zwischen 60 bis 90 % organisch abgebaute Faulgut wird normalerweise in Speichergruben bzw. Behältern zwischengelagert, bis es zur Düngung und Bodenverbesserung der Felder ausgebracht werden kann. In diesen nach oben offenen Speichern findet nun eine Nachgärung statt, die den organischen Rest des Faulgutes weiter abbaut. Dabei entsteht jedoch nicht nur weiteres Gas, das verloren geht, sondern auch die Qualität des zukünftigen Düngers wird – wie schon beschrieben – durch Umwandlung des Stickstoffs in Luftstickstoff vermindert.

Spannt man nun über die Lagune eine luftdichte Plane,  gehalten von einem rechteckigen Schwimm-Ponton – so entsteht ein zusätzlicher Gasspeicher, in dem sich – wiederum unter Abwesenheit von Sauerstoff – Biogas bildet und der Luftabbau des Stickstoffs weitgehend verhindert wird. Diese Methode des Überspannens der „Lagune“ führte zu einer Steigerung der täglichen Gasausbeute in der Größenordnung von 50 bis 100 m³ Nachgärgas.

 

Ausschnitt, Lagune mit Gasspeicher

 

 Bild: Gesamtschema Gasspeicherung, mit Wärmetauscheranlage

 

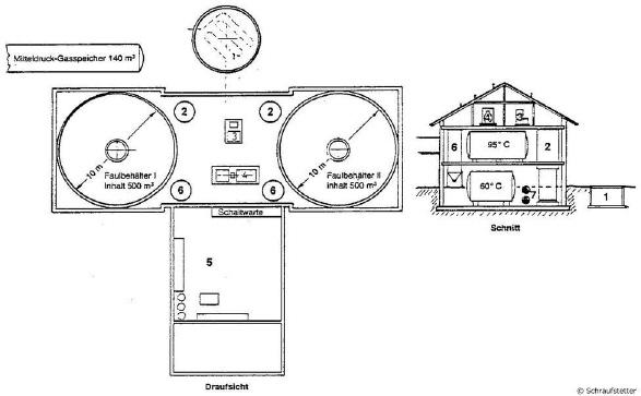
2.4.     Aufbau der Anlage

 

Bild: Anlagenaufbau/Draufsicht

1: Mischbehälter

2: Substrat-Vorwärmer (Wärmetauscher)

3: Kompressor

4: Gasmotor-Generator-Einheit

5: Schaltwarte und Labor

6: Entschwefler

7: Versorgungseinrichtung

 

Kernstück der Anlage sind zwei Beton-Faulbehälter. Zwischen den Faulbehältern sind auf vier Ebenen übereinender die Versorgungseinrichtungen, wie Wärmetauscher, Wärmespeicher und Gasentschwefelungseinrichtungen, die Gasmotor-Generator-Einheit, der Gaskompressor, die Steuerventile, sowie die Mess-, Kontroll- und Sicherheitseinrichtungen untergebracht. Die vier Ebenen sind durch Treppen miteinander verbunden und begehbar. Ebenso sind die Behälterabdeckungen.

Sämtliche Geräte und Einrichtungen der Anlage sind leicht zu erreichen. Behälter und Mittelbau sind völlig von dem Isoliergebäude umgeben. Der Steuer- und Kontrollraum ist längsseitig an das Isoliergebäude angebaut; er enthält u.a. die Schaltschränke.

An der gegenüberliegenden Seite befinden sich der abgedeckte, unterirdische Mischbehälter – auf zwei Betonsockeln der liegende Gas-Mitteldruckspeicher. Vor der Stirnseite liegt vertieft der Gülle-Speicher, der Pumpenschacht sowie die mit einem Kissenspeicher für die Nachgärgase überspannte Lagune.

 

 

2.5.     Technische Beschreibung/Funktionsbeschreibung

 

Die Gülle wird mittels einer Dickstoffpumpe aus dem Güllespeicher in den Mischbehälter gepumpt. Dort können der Gülle Zusätze z.B. saisonale pflanzliche Biomasse beigemischt werden.

Das Substratgemisch aus dem Mischbehälter wird beim Herauspumpen homogenisiert, in dem beschriebenen Gegenstromwärmetauscher erwärmt und im Bereich der 1. Phase (Säurephase) von oben in den Fermenter eingebracht.

Ein Schneckenförderer (der jedoch bisher nicht eingesetzt werden musste) sollte die Bildung einer Schwimmdecke verhindern, ein Bodenrührwerk das Absetzen des Faulgutes.

Aus dem Methanbereich des Fermenters wurde vorher die gleiche Menge an abgebautem Substrat in den Gegenstromwärmetauscher gepumpt.

Dieses Substrat verdrängt daraus das Faulgut des vorangegangenen Austauschzyklus in das Röhrensystem im Mischbehälter und weiter durch den Güllespeicher hindurch in die Lagune. Auf dem gesamten Weg bis zur Lagune gibt das Substrat aus dem Faulbehälter Wärme an das noch kalte, frische Substrat ab. Aufgrund der sehr unterschiedlichen Abbauzeiten der einzelnen organischen Bestandteile des Substrates, das aus dem Faulraum in die Lagune gelangt, sind diese noch nicht vollständig biologisch abgebaut.

Um das Faulraumvolumen möglichst klein zu halten, werden die Aufenthaltszeiten des Faulgutes im Reaktor jedoch so bemessen, dass nach der größten Gasproduktion das Substrat bereits wieder aus dem Faulraum ausgetragen wird, um frischem Platz zu machen.

Bei entsprechender Prozessführung kann die Verweilzeit für ein bestimmtes Substrat bei gleichem Ausfaulgrad um ein Vielfaches verringert werden (Stoffumsatzrate). Die nach dem Reaktoraufenthalt nicht abgebauten organischen Bestandteile unterliegen in der Lagune einem Nachgärprozess bis zum vollständigen Abbau.

 

Der Speicher für das entstehende Biogas ist über eine Gasleitung mit dem Faulbehälterdom des Biogasreaktors verbunden.

Aus dem Dom wird das Biogas über Leitungen zum Kiesfilter geführt, verdichtet und in den Mitteldruckspeicher eingepresst.

Aus dem Mitteldruckspeicher werden alle Gasverbraucher versorgt. Die bei der Gasverdichtung entstehende Wärme wird in einen Wasserwärmespeicher eingetragen.

Vor dem Verbrauch muß das Gas entspannt werden. Es nimmt dabei Wärme auf.

Die Wärme, die bei der elektrischen Energieerzeugung entsteht wird über Wärmetauscher in die Wasserwärmespeicher eingetragen.

Wärmeverbraucher ist u.a. die Warmwasserheizung beider Gegenstromwärmetauscher.

 

 

2.6.     Mess-, Steuer-, Kontroll- und Sicherheitseinrichtungen

 

Der Anlagenbetrieb erfolgt automatisiert. Kontinuierlich gemessen werden PH-Wert, Temperatur und Gasmenge. Gesteuert werden Substratein- und austrag. Die Gasverbraucher werden von Hand zugeschaltet. Die Wärmeverbraucher versorgen sich selbständig über Thermostatregler.

 

 

2.7.     Sicherheitseinrichtungen

 

Über den Faulbehältern sind in kritischen Bereichen Messköpfe eingerichtet, die die Methankonzentration im Isoliergebäude messen.

Wird ein Methangaswert von 4 % überschritten, so wird ein Alarm ausgelöst. Der Explosionsbereich liegt zwischen 5 % und 15 % Methan in der Luft. In einer weiteren Ausbauphase wird zusammen mit dem Alarm ein mehrstufiges Gebläse eingeschaltet, das für einen entsprechenden Luftaustausch im Isoliergebäude sorgt.

Sämtliche elektrischen Einrichtungen im Isoliergebäude entsprechen den gestellten Sicherheitsanforderungen.

 

Der Gaskompressor und ebenso die Gasmotor-Generator-Einheit sind innerhalb des Isoliergebäudes in getrennten, einzeln belüfteten Räumen untergebracht. Drei in Reihe arbeitende Schalter verhindern, dass der Gaskompressor in den Faulbehältern einen Unterdruck erzeugt. Die Faulbehälter sind über jeweils eine Wasservorlage bei Überdruck direkt mit einer Abfackeleinrichtung verbunden. Die eingebauten Kiesfilter dienen als Flammenrückschlagsicherung.

 

Das Isoliergebäude hat zwei Stahltüren, von der eine ins Freie und die andere in den Steuer- und Kontrollraum führt. Die Stahltüren sind von innen immer zu öffnen. An entsprechenden Stellen sind Feuerlöscher aufgehängt. Ein Löschschacht mit vorgeschriebener Wasserleitung und entsprechendem Schlauchanschluss ist vorhanden. Da die Biogasanlage vom Steuer- und Kontrollraum aus zu bedienen ist, wird das Isoliergebäude, in dem sich die Biogasanlage befindet, nur im Ausnahmefall betreten.

 

Die gesamte Anlage ist in dieser Form TÜV Bayern geprüft und abgenommen worden.

  

Jede Anlage muß grundsätzlich immer in Abhängigkeit von Substratmenge, -Art, den örtlichen Gegebenheiten etc. individuell ausgelegt werden. Nähere Informationen erhalten Sie unter --Kontakt--.

âzurück